top

Property Details

For Sale Featured 10 months ago 7

Seaside Bungalow for Rent

₹ 2500.00

Goa, 88/14 ₹ 456.00/SqFt
1743100473-PVvDhORXPV.webp
1743100473-OgELyeT5D6.webp
1743100473-dIkBoakGNM.webp
1743100473-X9a8AmApQ1.webp
1743100473-tlLqCeBc11.webp

Description

Relax by the beach in this stunning seaside bungalow. With direct beach access and luxurious interiors, it’s perfect for a family vacation or peaceful living.

Facts and Features

Type
Apartment
Year Built
2025
Heating
Centralized
Sqft
2544
Bedrooms
4
Bathrooms
3
Garage
2

Additional Details

  • Property ID 54654625
  • Property type Villa
  • Rooms 3
  • Size 2544 SqFt
  • Garage 2
  • Garage size 1242 SqFt
  • Amount ₹ 2500.00
  • Property status For Sale
  • Bedrooms 4
  • Bathrooms 3
  • Bathrooms 150 SqFt
  • Year build 2025

Offices Amenities

  • Balcony
  • Fireplace
  • Basement
  • Dining room
  • Cooling
  • Dishwasher

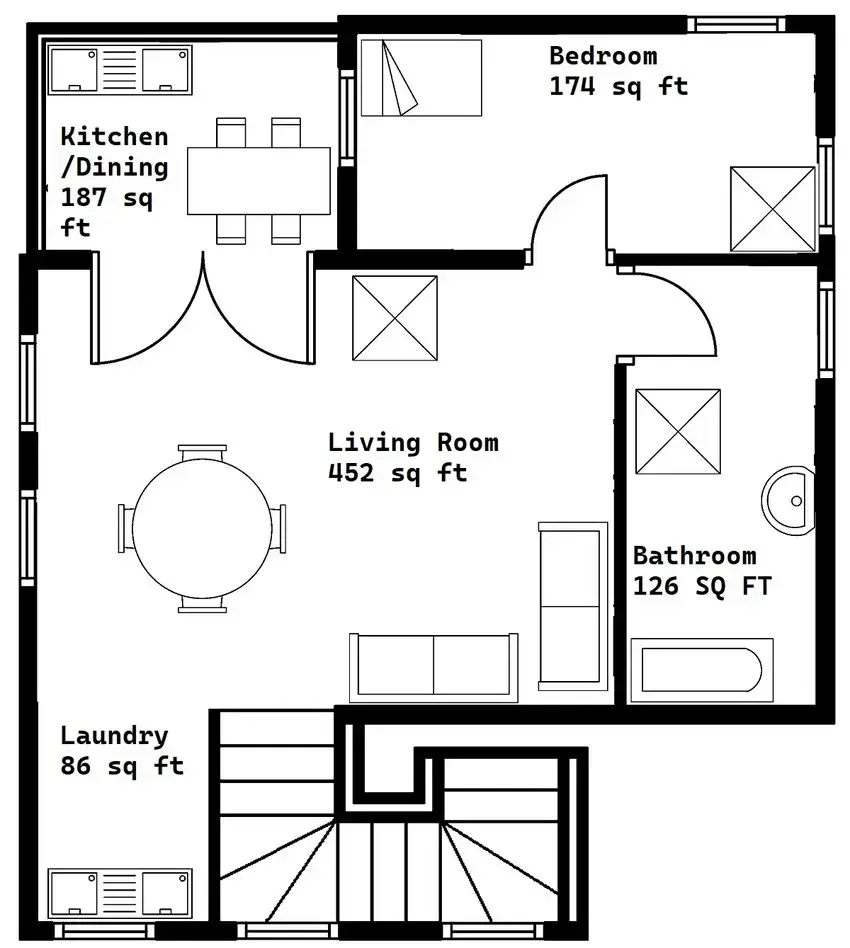
Floor Plans

First Floor
  • Beds : 4
  • Bath : 2
  • Sqft : 122

Ratings & Reviews

Avarage User Rating

0 /5

Rating Breakdown
0%
0%
0%
0%
0%

0 Reviews

Write A Review

Property Attachments

element
1743101128-1724061002-property.docx

Visual Tour

Location

client
Test User Two
Varified

Related Properties